At their most basic level, buildings protect us from the sun, wind, and rain while comprising the very materials nature provides. This tendency to either shield from or consume the environment (without giving much back) typically contributes to an overt division, rather than synergy, between architecture and its surroundings. Nature, in this scenario, is “other.” It is relegated as outside, disregarded by human priorities for space.
For Associate Professor Danelle Briscoe, the visionary behind the OTHER NATURE exhibit, architectural projects should consider more than just human habitation. For her and the theorists and practitioners represented in the exhibit, new and inclusive approaches to integrating natural systems into the built environment with broader façade applications have the potential to mediate in the development of the Anthropocene and provide possible solutions for mitigating our current environmental crisis. These approaches include walls of planting, habitats for bees, and niches for growing algae. Empowering the “other” within the ordinary encourages ecological integration within the social and functional impacts of practice.
An outcome of Briscoe’s Meadows Foundation Centennial Fellowship at the Center for American Architecture and Design, the OTHER NATURE exhibit and accompanying book offer examples of systems and façade treatments that use vegetation as a thoughtful building material that connects people with their food and provides habitats for living creatures.
One such example is the UT School of Architecture’s Living Wall pilot project, envisioned and installed by Briscoe in Spring 2016 in collaboration with the Lady Bird Johnson Wildflower Center. Located along the northwest corner of Goldsmith Hall facing Guadalupe Street, the ten-by-twenty-five-foot Living Wall features a series of honeycomb-shaped components that house native plants and serve as a bio-habitat for anole lizards, birds, bees, and butterflies. Since its installation, Briscoe and other researchers have monitored the structure and gathered data on the flora and fauna and their viability in Austin’s hot, dry climate. From this data, the living wall can be said to help cool the building and serves as a natural air filter.
On view in the Mebane Gallery through September 15, the exhibition features eleven examples of ecological design in action, in addition to potential ways that the discipline and the academy can explore and effectively apply such design innovation. Work from the following practices is included: Diana Agrest, FAIA; Precht; Akihisa Hirata; Husos Architects; ecosistema urbano; Jardin Shinohara; Terreform ONE; Variance Design; Rael San Fratello; Danze Blood Architects; and ecoLogicStudio.
Accompanying the OTHER NATURE exhibition is a seventy-page book published by the Center for American Architecture and Design. In addition to photographic and video representation of the exhibited projects, the catalog features an in-depth interview with Diana Agrest, FAIA; a transcribed lecture by Dr. Claudia Pasquero of ecoLogicStudio; and playful pop-up spreads that complement the work of both Belinda Tato of ecosistema urbano and Dr. Mitchell Joachim, Assoc. AIA of Terreform ONE.
The Texas Hill Country has remnants of the Cretaceous Period, which began 145 million years ago. During this period, the sea covered the Earth and deposited limestone across what is now Texas. This limestone eroded over time to form the hills of the Hill Country. the site is an untouched (by humans) parcel of land. How does one begin to design in such a place? The need for water (and control/collection) for an increasingly hot and dry climate was a priority. Drilling for a well initiated the reason for this project.
The project exists as a series of dualities, the first being the formal figures of cabin and kitchen (400 sf) within a relentless landscape. The site is a primitive parcel of land in the Texas Hill Country, where 145 million years ago the Cretaceous Period began and still exists in plain sight. The section through this structure pulls water from a geological strata 550 feet below the surface. This terrain rises to 2400 feet above sea level in this hot and dry climate; making water sources, collection, and drainage critical factors for consideration and its relationship with the environment. The need for water control and collection dictated the initial well house program and encouraged a building concept that successfully set new standards in architecture with its rainscreen design. The kitchen’s literal open-ended nature and strategic orientation to view special trees and capture prevailing NS breezes. The cabin is a modest figure that pins a logical location for the well. In addition to the well, a small washroom and sleeping quarters are functional provisions.
The project explores the nexus between construction technology and the potential of material economy. The Kitchen pavilion utilizes a prefab galvalume system of construction, while the cabin demonstrates and experimentation of steam-bending cedar planks. This bend allows for wrapping of the wall to the roof of the often-disregarded tree, Ashe Juniper, or “cedar” as it is more commonly called in this region. Cedar is very durable and can withstand many climatic conditions. and also, as a porous wood, it can absorb noise and act as a natural insect repellent. This material stock serves as the final layer to an innovative rain screen with low-tech, roll-on underlayment.
Initially conceived as a pilot-program by UT Vice President for University Operations Pat Clubb, the project was shepherded by former UTSOA Dean Fritz Steiner and then Assistant Professor Danelle Briscoe. Designs were informed by Mark Simmons “green roof” research. Simmons (now deceased) served as Director of Research and Consulting for the Ecosystem Design Group at the Wildflower Center. His work on the living wall was continued by Michelle Bright, an environmental designer at the Wildflower Center. Former Austin Councilman Chris Riley was an early advocate of the project and represented the city’s interest in the initiative as a collaborative endeavor.
Design
Installing a green wall in Austin, Texas represents a unique challenge. Similar projects are typically erected in forgiving climates, where plants can best thrive. A living wall in drought-prone Austin requires considerable thought and ingenuity. The project’s designers, for example, selected a cross-section of native plants (including succulents, shrubs, climbers, and grasses) that were not only visually striking, but also heat tolerant. To further ensure the wall’s success, they developed a honeycomb-shaped architectural structure, currently patent-pending. Its 148 “cells” (soil containers) were designed to accommodate a greater amount of dirt than is typically used—critical to sustaining the plants in Austin’s subtropical climate.
Bio-habitat
Another unique feature of the wall is that it has been designed to serve as a bio-habitat. The carefully-selected native plants were chosen to attract and provide shelter for anole lizards, hummingbirds, butterflies, songbirds, and raptors such as hawks and owls, among other beneficial fauna.
Environmental Benefits and Data Collection
Beyond its aesthetic and sociological benefits, the wall will provide building cooling, city cooling, storm water mitigation, noise buffering, and serve as a natural air filter, removing particulate matter, VOC’s and carbon monoxide as air passes through it. Given its location—facing highly-trafficked Guadalupe Street—the wall will undoubtedly spark dialogue, catalyzing multiple educational opportunities.
The wall at the School of Architecture will serve as a prototype for the project and its progress will be closely monitored. Data will be gathered and analyzed to determine if green walls can be implemented elsewhere on campus, and perhaps throughout the city of Austin.
Project Background
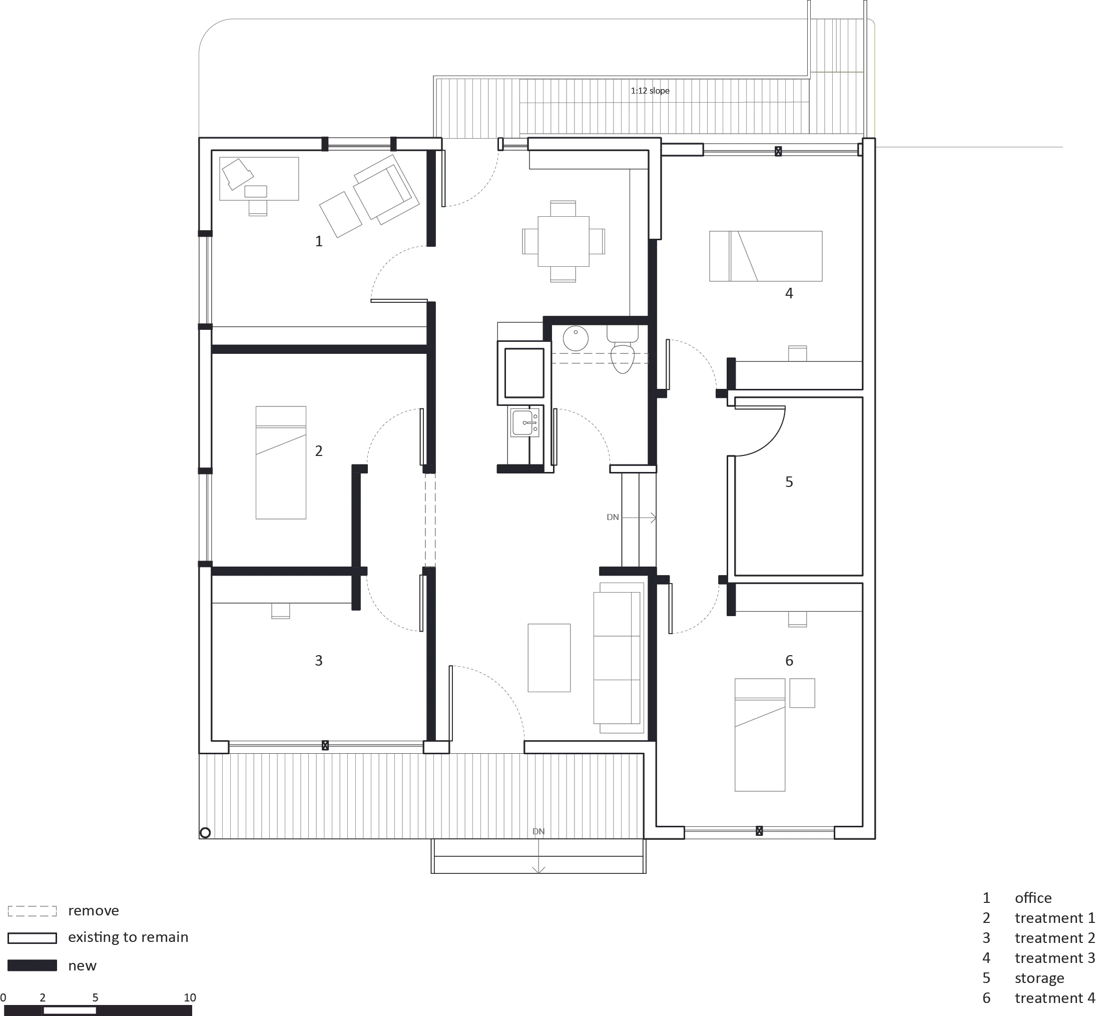
The West Lake Hills remodel/renovation was completed in January 2024. It is a remodel and renovation of a historically significant home within the mid-century modern narrative of Austin, Texas. The original blueprint drawings are now saved in the University of Texas School of Architecture Alexander Archive. The project is associated with the former firm Placek, Coleman & Englemann—a trio that contributed extensively to the broad patterns of mid-century modern architectural history in Austin. According to the home’s original drawings, it was built in 1972 for David Englemann (the firm’s structural engineer) by W.R Coleman and Associates (the firm’s builder/designer). In the year of this construction, John Placek (the architect) had begun to pursue his later career as an architectural academic at the University of Texas at Austin.
Project Description
The original home and recent updates to it present an aesthetic of restraint-- simplicity balanced with decisive complexity. It is unobtrusive in the heavily wooded backdrop of the West Lake Hills neighborhood. Unsurprisingly, a house designed for a structural engineer is bridge-like, spanning the site’s creek below. The composition of two existing gables set well within the broad flat roof diminishes its overall scale and volume. The front elevation has been revised with all finishes and an asymmetrically composed continuous deep eave. To resolve the confusion about entering the house, the design offers a new street front focal point and walkup path. Upon entry, an updated outdoor foyer provides an indirect and gradual introduction to the living spaces and serves as a transition between the house’s public and private zones. This double-loaded corridor gives an outdoor living room up in the trees and foremost prioritizes the indoor/outdoor experience of the entire house.
Once inside, the open-plan living room, library, and kitchen have been cleared of several 80’s odd additions to enjoy abundant natural light from expansive windows on the east-west sides. Previously, the views of the dry creek below were completely obscured. The major changes to the original (and not so original design) are on the opposite west side where a library was added where once was the laundry closet that blocked views to the creek beyond. opens to the living room and the greenery beyond. Mudroom/entry off the garage. Vaulted ceilings mirror the roof gables above, give expansive volume to living and bedroom areas, and offer connectivity of borrowed natural light between bedroom and living. The deep eaves at the perimeter flat roof give both natural light and shade from the Austin sun.
Considering Austin's population and subsequent building growth, this home represents what is now considered a very modestly sized home, neither complicated or contrived. In a time when many new residents and home buyers either demolish old Austin homes to maximize allowable buildable area with a disregard for the history and environment of this place. This project represents a sentiment of old Austin that is increasingly fading away.
This Metropolis Magazine 'Big Idea' competition entry was awarded an Honorable Mention design prize and inclusion in the ‘Raw Exhibit’ 2004 ICFF. The ‘Big Idea’ behind this doorstop is intended as functional object that brings consciousness to human issues while raising money to fight AIDS non-profit organizations.
The renovation of a 1920’s north-facing, bungalow in the Auckland village of Sandringham prompts decisions of how to maintain the integrity but still update a character house.
The major changes were to add a bathroom in the location of the existing entrance and to open the existing verandah as the new entrance. A driveway and entrance on the sloping site were also installed to meet the new verandah. The main living space was also converted into an open plan to allow flow of living/dining and kitchen. The existing bathroom was made into a laundry and existing laundry made into a guest bedroom.
This research seminar oferred at University of Texas at Austin (2010-2013) explored the concepts of material ‘sensation’ and technological ‘reason’, as they overlap in architectural practice. In contrasting these two concepts, the research neither celebrates nor denounces sensuous empiricism, but aims to gain a deeper understanding of its definition, potential as concept and production in relation to emerging technologies. The semester involved the development of fabrication outputs, based on readings and discussion of material aesthetics and effects. The course seeks to investigate approaches derived from parametric capabilities cross-referenced with the rules of CNC production and material logic.
This research underscores the dialectic between the prevailing paradigm (within mainstream architecture) of masonry standardization and the emerging practices of unique, non-standard masonry veneer. The stone exploration proposes practical opportunities and theoretical implications through the use of standard parametric design and digital fabrication technologies - practices that could ultimately become standards in building tradition. This current research and production of non-standard, stone building components rely on conventional hand labor to form mass-customized patterns and effects; demonstrating innovative strategies of labor and production that give new meaning to the term “hands-on” masonry craft.
For this Muji International Design Competition, the theme “SUMI” seeks out design objects not to be placed in the middle of the room, but towards the edges, not at the centre and not directly around the centre. This proposal evades the eye and celebrates the often overlooked switch plate that resides in the corner, edge or end of a room. Made of clear plexi-glass with opaque backing, its edges disappear further into the wall. At the same time catches light to highlight its edges.
This renovation project of a 1960’s bungalow in the Austin suburb of Allendale uses light to maximize space in a 1000 square foot house. The galley kitchen addition required functional efficiency while opening up as much wall space to a door and window. The addition of double French lite doors opens up the living space to the back yard and deck.
This renovation project updates the kitchen and living space of a 2,200 square foot, 1960’s bungalow in Tarrytown. The house was added onto in the 70’s in such a way that a major tree was left intact and is now the central atrium space. The major changes were open up the main living space to allow flow of living/dining and kitchen and vault that main space to give greater volume and light. Attention to ceiling conditions in other parts of the house encourages a flow of space between indoor and out in the family room and natural light to occur in bathroom 1.
The TOGS Competition entry conceptually begins with a parametric component that serves as a space of exhibition display for the artist. This individual space is distributed across a curvalinear form so that each individual space is seen as part of a collective, something like a unit in a beehive. Because this approach offers systematic variability, the TOGS can be adapted to any site in any city for any artist’s work. The exhibition space is defined by the flat platform that displays the TOGS™ which will bring color to the street and art fair. Curvature of the wall structure makes for a free-standing, efficient space frame.
Integrated electrical servicing within the space frame allows that each of these component spaces could have their own lighting system for display at night. One TOGS contains 33 full display spaces and 19 half or partial spaces per side. The system that organizes the TOGS can be broken down into 3 unit types (A,B,C diagrams). For portability, the units can be packed flat and assembled on site like a puzzle. One temporary gallery space can fit into a 4’ x 4’ container with room for additional connector pieces. This standard unit would allow for efficiency of transportation and assemblage.
The furniture project combines digital fabrication techniques with aluminium sand casting. The minimal bent-plywood, ergonomic lounge utilized a digital foam cutter to produce a positive jig to bend the wood onto in a 6 foot vacuum bag. The aluminium legs were hand carved and then fabricated onto a plate for casting. The same leg had to be able to support the base of the chair as well as be aesthetically proportioned to work in the front. Legs are removal for ease of transportation.
This 2006 research project, funded through Unitec New Zealand Research Grants, investigated the limitations and advantages of stereo-lithography in conjunction with BIM. This technology is capable of fabricating design goals in small, model representations and soon to be capable of printing full-scale building as well. A complex architectural form challenges the efficiency to “construct” with bricks of irregular shape. The project was a solo window exhibit in Objectspace Gallery, Ponsonby.
This clinic renovation project of a 1950’s bungalow turned commercial property in the suburb of Allendale on the busy street of Koenig Lane. The project uses light to maximize space for a new acupuncture clinic. The project was updated to ADA compliance, given a total new interior floor plan, as well as addressing greater street presence.
In the Fall of 2004, the MAK Center Los Angeles and Sundown Salon presented a multi-phased performance, exhibition and benefit that used the provocative R.M. Schindler¹s renowned house to produce creative thinking about design and the body. Participants included architects, artists, fashion designers and performers. Exploring contemporary currents and new frontiers in clothing and fashion, Showdown! spanned the complete garment life cycle, from design and production to display, fitting and daily use. The runway show event simultaneously served a double audience seated in gardens on either side of the Schindler House; using sculptural, two-story stair towers designed by COOP HIMMELBAU.
Team Gizmo (Danelle Briscoe, Judith Mussell and Susan Benningfield), all co-workers from Frank Gehry’s office, questioned the extreme fluctuation of fashion made of actual paper waste we collected from the Gehry’s office. The idea came from the term “paperless office” which actually had the seemingly opposite effect, whereby we witnessed an increasing amount of paper output used to verify the ”virtual”. In this process, we sided with the waste, and celebrated the unwanted, the mistake, the wrong thing, the innocent paper, being abundantly produced and discarded. Methodologies for constructing the clothing included paper folding, manipulation and assemblage as down-home as the stapler and “Handy Stitch.”
Design by Coop Himmelblau, Photo by Christoph Kumpusch